Übersicht aller Feedbackeinträge
| Auslöser | Produkt | Art der Verbesserung | TI / TE - Nummer | Thema | Beschreibung | Anlage | Status |
|---|---|---|---|---|---|---|---|
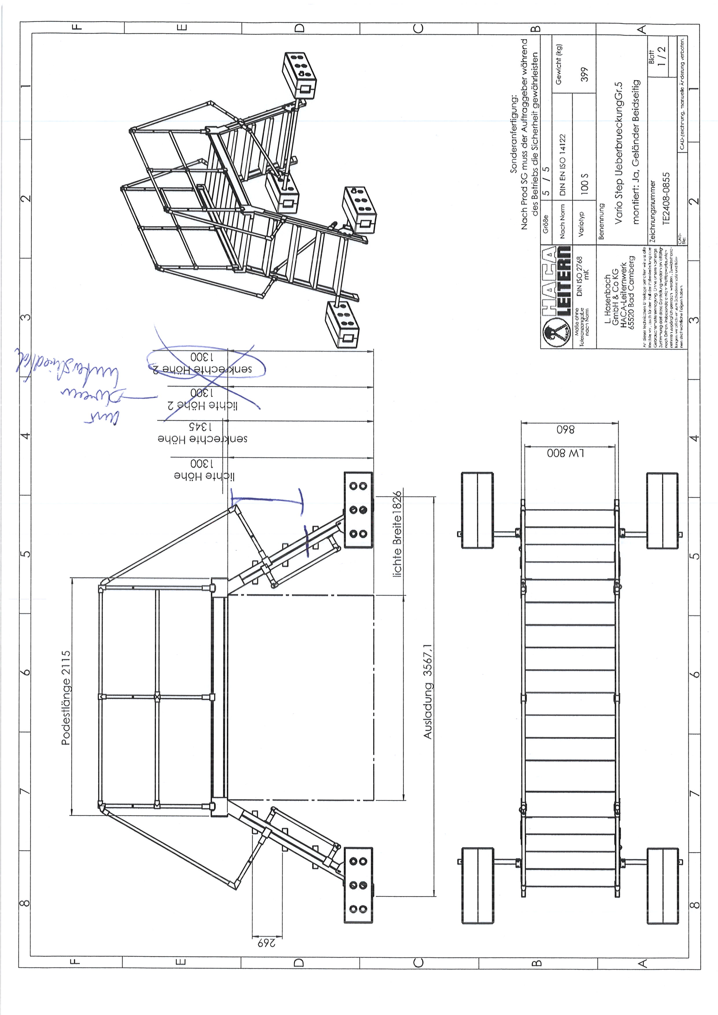
| Gartner | Vario ortsfest | Fehler | TE2408-0855 | Vario Überbrückung Bemaßung | Position Maße SH 2 falsch | ![]() | Erledigt |
| Rühl | ortsfest | Wunsch | TI2404-0168 | Information Gegengewicht Zeichnung | Angabe der Gegengewichte und Gehwegplatten etc. auf der Zeichnung | ![]() | Erledigt |
| Rühl | ortsfest | Fehler | TI2309-0060 | Sonderanfertigungstext Zeichnung | Auf der Zeichnung fehlt der Hinweis der Sonderanfertigung für die Normauswahl Haca Sonderbau | ![]() | Erledigt |
| Spey | ortsfest | Feedback | Zeichnungsansichten | Für die ortsfesten Zeichnung wird mehr und mehr eine Drauf und Seitenansicht gewünscht | Erledigt |
||
| Vertretertagung | Feedback | TCSite Datumseingabe | Datumseingabe verbessern; grau hinterlegt schwer zu unterscheiden, ob schon eingegeben | Zurückgestellt |
|||
| Vertretertagung | ortsfest | Wunsch | 13er Leiterteil | Prüfen wo das 13er Leiterteil ersetzt werden kann, da zu teuer | Zurückgestellt |
||
| Vertretertagung | ortsfest | Wunsch | Montageplan Anmerkung | Step-Dateien, Andruck des aktuellen Bestätigungsfenster und Hinweis, dass die Zeichung keine Bohrschablone ist | Erledigt |
||
| Vertretertagung | Wunsch | TCSite TI-Nummer | TI-Nummer soll auch auf Folgeseiten übernommen werden | Zurückgestellt |
|||
| Vertretertagung | ortsfest | Wunsch | Wandhalter verschiebbar | Step-Dateien, Wandhalter verschiebbar | Abgelehnt |
||
| Kettenbach | Vario ortsfest | Wunsch | Lichte Höhe überdenken und zu senkrechter Höhe ändern | Lichte Höhe Eingabe zu senkrechter Höhe wechseln | Abgelehnt |
||
| ortsfest | Wunsch | Aufstiegshöhe frei machen | Haca Sonderbau Aufstiegshöhe unbegrenzt machen | Abgelehnt |
|||
| Händlertagung | Feedback | Zugriff auf externe Vorgänge | Zugriff für Händler auf externe Vorgänge von Kunden | Abgelehnt |
|||
| Vertretertagung | ortsfest | Wunsch | Übersteigteil Größen | Größen für Übersteigteile hinterlegen | Erledigt |
||
| Kettenbach | Vario ortsfest | Wunsch | Blechtgitterost Sachmerkmal prüfen | Stufentiefe für Blechgitterrost wird falsch übertragen; 150 statt 240 | Erledigt |
||
| Vertretertagung | Feedback | Sortierung bei Extern | Die Sortierung der Projekte und neuen Projekte ändern; Neues Produkt, nicht gespeicherte Projekte, gespeicherte Projekte (aktuellste oben) | Erledigt |
|||
| Vertretertagung | Feedback | Änderungshinweise anpassen | Meldung und Änderungsvorschläge bei Eingaben, die nicht funktionieren, verbessern/klarer gestalten; Logik hinter Lösungsfindung anschauen | Zurückgestellt |
|||
| Händlertagung | ortsfest | Hinweise überarbeiten | Plattformpflicht ?!, Türchenpflicht ?!, Vorteil Durchsteigesicherung, Sicherungstür Unterschiede erklären | Zurückgestellt |
|||
| Vertretertagung | Feedback | Informationen | Anwendervideos, Erklärungen für Abkürzungen, Normauswahl (Katalogbild einbinden), Bilder zur Erklärung | Zurückgestellt |
|||
| Vertretertagung | Feedback | Onlineprojektsuche | Onlineprojektsuche verbessern: Anzeige, dass er noch sucht | Zurückgestellt |
|||
| Fritz | Feedback | Positionsbezogene Textfelder | Manchmal wird nicht die komplette Textlänge übernommen (Textfeld innerhalb der Konfiguration) | Zurückgestellt |
|||
| Spey | Feedback | Sachmerkmale | Sachmerkmale teilweise irreführende Bezeichnung; klären inwieweit die Bezeichnung geändert werden kann | ![]() | Zurückgestellt |
||
| Händlertagung | ortsfest | Fehler | Rückenschutzhöhe | Rückenschutz bei Höhe 2200 niedriger, wie Norm vorgibt; Besteigesicherung für Tür ?! | Zurückgestellt |
||
| Intern | Vario ortsfest | Wunsch | Vario Überbrückung 45° | Versuche machen, um Grenzwerte für 45° festzulegen | Zurückgestellt |
||
| Gartner | Vario ortsfest | Wunsch | Treppenendstütze seitlicher Ausstieg | Treppenendstütze seitlicher Ausstieg | Zurückgestellt |
||
| ortsfest | Wunsch | Anzahl der Leiterzüge | Manche Kunden brauchen/wollen mehr Leiterzüge innerhalb einer Anlage. Momentan sind maximal 4 Züge möglich | Zurückgestellt |
|||
| WL München | ortsfest | Wunsch | 3. Zusatzpodest | 3. Zusatzpodest für Leiterzüge möglich machen | Zurückgestellt |
||
| Schuster | ortsfest | Wunsch | 7er/10er/(13er) Übergangsstücke | Prüfen wo das 7er/10er/(13er) Übergangsstück die kleinen ersetzen kann | Zurückgestellt |
||
| Schuster | ortsfest | Wunsch | 13er Leiterteile | Prüfen wo das 13er Leiterteil ersetzt werden kann, da zu teuer | Zurückgestellt |
||
| Vertretertagung | ortsfest | Wunsch | Einteilung Rückenschutzverbinder | Aufstellung nach Leiterzügen, wie bei Leiterteilen selber. Bessere Zuordnung für den Kunden | Erledigt |
||
| Spey | ortsfest | Fehler | TI2407-0157 | Wandhalter Kollision Zwischenpodest und Leiter | "Wandhalter prüfen(Aufbau) Positionierung Podestwandhalter große Platte" | In Bearbeitung |
|
| Intern | Schachtleiter | Fehler | Fußplatten prüfen | Erledigt |
|||
| Intern | Vario ortsfest | Fehler | LW 600 bestätigt führt zu Problemen | Wenn LW 600 bestätigt wird, laufen Konfigurationen teilweise an anderen Stellen in Fehler | In Bearbeitung |
||
| Intern | Vario ortsfest | Wunsch | Ballastierung für kleine Höhen | "Einschränkung der Ballastierung aufgrund der Anbindung/Kollision mit Geländerstütze wegnehmen Zeichnung mit Vermerk versehen, dass das Geländer und Ballastierung sich im Auftragsfall noch verändern können" | Erledigt |
||
| Intern | Vario ortsfest | Fehler | kleine Werte bei lichter Höhe möglich machen | Lichte Höhe bei 450 mm Startwert möglich machen (SH 500) | In Bearbeitung |
||
| Kettenbach | Vario ortsfest | Fehler | Vario Türchen | Vario Türchen | In Bearbeitung |
||
| Kettenbach | Vario ortsfest | Fehler | Vario Abstützung | Vario Abstützung; Artikelnummer auf Stüli teilweise nicht korrekt | In Bearbeitung |
||
| Kettenbach | Vario ortsfest | Wunsch | Schnittwinkel | Schnittwinkel für abgewinkelte Füße W1 fehlt in der Tabelle | In Bearbeitung |
||
| Vertretertagung | Feedback | CSV Stückliste für Händler | CSV/Excel Liste mit Stückliste für Verkauf, um diese den Händlern bereitzustellen | In Bearbeitung |
|||
| Gartner | ortsfest | Fehler | TI2411-0222 | Zugband doppelt | Zugband dank verstärkter Wandhalter nicht notwendig | ![]() | In Bearbeitung |
| Reimann | ortsfest | Wunsch | TI2412-0049 | Steigleiter in Aluminium | Kunde wünscht sich Steigleiter in Aluminium nach 18799. Auswahl in Tacton möglich machen. | Abgelehnt |
Page: haca:fachbereiche:technik:konfifeedback:uebersicht Creator: Tassilo Andretzky Date: 18/09/2024 10:29




